Mât de capture pour la pose sous le toit du conducteur HVI

Pour le montage sur les supports de toit.Version visuellement modifiée pour un montage intégré du conducteur HVI dans le tube support. Le conducteur HVI passera dans le tube de soutien pour être posé sous le toit.Avantages :
  • Pose sous le toit, pas de conducteur visible à l'extérieur du bâtiment
  • Montage simple ; un seul tube est visible
  • Pas de contraintes mécaniques, par ex. à cause de la neige
Longueur de commande minimale : 6 m. Veuillez indiquer la longueur du conducteur lors de la commande (tranches 0,5 m).Du fait de sa fabrication sur commande (confectionné en fonction de la longueur désirée), ce conducteur ne peut pas être repris.

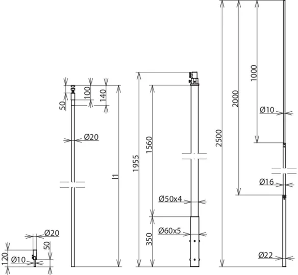
Conducteur HVI dans tube support avec pointe de capture

1 Product

Part No. 819247 HVI 20 M L6M SR1955 FS2500 DSH GFK AL

GTIN 4013364260900, Customs tariff No. (EU): 85389099, Gross weight: 7.10 kg, PU: 1.00 pièce(s)


Images

Additional information

Mât de capture pour la pose sous le toit du conducteur HVI
Mât de capture pour conducteur HVI et pointe de capture pour
une pose sous le toit pour le montage sur le support de chevron
Le conducteur HVI passe dans le tube de soutien du support de chevron
et est posé dans la zone du contre-lattage/lattage de toit.
Les tubes supports sont dimensionnés selon Eurocode 1 (DIN EN 1991-1-4 + DIN EN 1991-1-4/NA).

Conducteur HVI DEHNcon-H dans un tube support, avec zone de terminaison spéciale
placée à l’intérieur et pointe de capture Ø22/16/10 mm, longueur 2500 mm
Matériau - tube support: PRV / Al
Longueur - tube support: 1955 mm
Couleur - conducteur: noir ●
Matériau - conducteur: Cu
Distance de séparation équivalente s (dans l'air) : ≤ 75 cm
Commande min.: 6 m
Vitesse de vent/rafales max.: 140 km/h
Norme: DIN IEC/TS 62561-8 (VDE V 0185-561-8)

produit : DEHN
Type: HVI 20 M L6M SR1955 FS2500 DSH GFK AL
Référence: 819247
ou équivalent

Certificates

 

Technical data

Matériau - tube support PRV / Al
Longueur - tube support 1955 mm
Longueur pointe captrice 2500 mm
Diamètre Ø extérieur GFK 50 mm
Diamètre Ø - conducteur 20 mm
Couleur - conducteur noir ●
Matériau - conducteur Cu
Distance de séparation équivalente s (dans l'air) ≤ 75 cm
Commande min. 6 m
Vitesse de vent/rafales max. 140 km/h
Norme DIN IEC/TS 62561-8 (VDE V 0185-561-8)

Product 819247 was added to Notepad.

Product 819247 was added to the cart.


back to top