Socles de tubes supports pour tubes supports PRV/Alu et tiges de capture D40

Pour le montage avec contre-plaque sur des passerelles grillagées, des poutres en acier ou d’autres constructions. Le kit d’adaptateurs pour tiges de capture D40 est disponible séparément en tant qu’accessoire.
Les tiges de capture D40 / tubes supports doivent être commandés séparément.

1 Product

Part No. 105244 SRS D50 300 300 H500 STTZN

GTIN 4013364503069, Customs tariff No. (EU): 85389099, Gross weight: 9.50 kg, PU: 1.00 pièce(s)


Images

Additional information

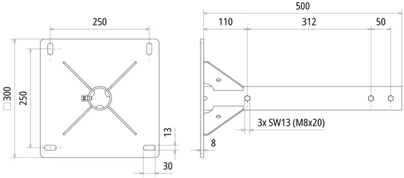
Socles de tubes supports avec pied support St/tZn
pour fixer des tubes supports Ø50 mm
La fixation de tiges de capture Ø40 mm
est possible avec kit d’adaptateurs de réduction référence 107 399.

Pour la mise en place directe dans certains zones ou
pour le montage avec contre-plaque, avec trou oblong
par ex. sur des poutres en acier ou des grillages
Matériau :: St/tZn
Fixation: Ø50 mm et Ø40 mm *)
Fixation: 4x 13 x 30 mm
Dimensions Plaque: 300 x 300 x 8 mm
Hauteur: 500 mm

produit : DEHN
Type: SRS D50 300 300 H500 STTZN
Référence: 105244
ou équivalent

 

Technical data

Matériau : St/tZn
Fixation Ø50 mm et Ø40 mm *)
Fixation 4x 13 x 30 mm
Dimensions Plaque 300 x 300 x 8 mm
Hauteur 500 mm
*) Fixation des tiges de capture Ø40 mm uniquement avec kit d’adaptateurs référence 107 399, fixation des tubes supports HVI Ø40 mm uniquement avec adaptateur référence 819 799.

Product 105244 was added to Notepad.

Product 105244 was added to the cart.


back to top