Air-Termination Mast with HVI Conductor

For a maximum free length of the whole air-termination system of 8.5 m.
To be fixed with three variable supports (Part No. 105 345).

The separable air-termination mast consists of
– Air-termination rod Al Ø16 / 10 mm, length 3000 mm
– Supporting tube GRP/Al Ø50 / 60 length 2100 mm (telescoping 200 mm)
– Mast pipe St/tZn Ø60, length 6000 mm with M10 locking screws, StSt
– HVI Conductor installed inside/outside the supporting tube
– Transport length 6000 mm

With 1x HVI Conductor installed inside the supporting tube. Conductor length has to be stated when ordering (0.5 m steps).

Maximum total length of the HVI Conductor of 12.5 m in case of class of LPS II.
Maximum total length of the HVI Conductor of 18.5 m in case of class of LPS III.

1 Product

Part No. 819730 FM 60 L11M IP HVI M L10M GFK AL STTZN

GTIN 4013364243477, Customs tariff No. (EU): 85389099, Gross weight: 53.54 kg, PU: 1.00 pc(s)

Predecessor

Images

Additional information

Air-termination masts with HVI Conductor
Air-termination masts with HVI Conductor
High-voltage-resistant insulated down conductor for keeping the separation distance from conductive parts according to IEC 62305-3
Specifically suited for e.g. fermenters or gas tanks of biogas plants according to class of LPS II.
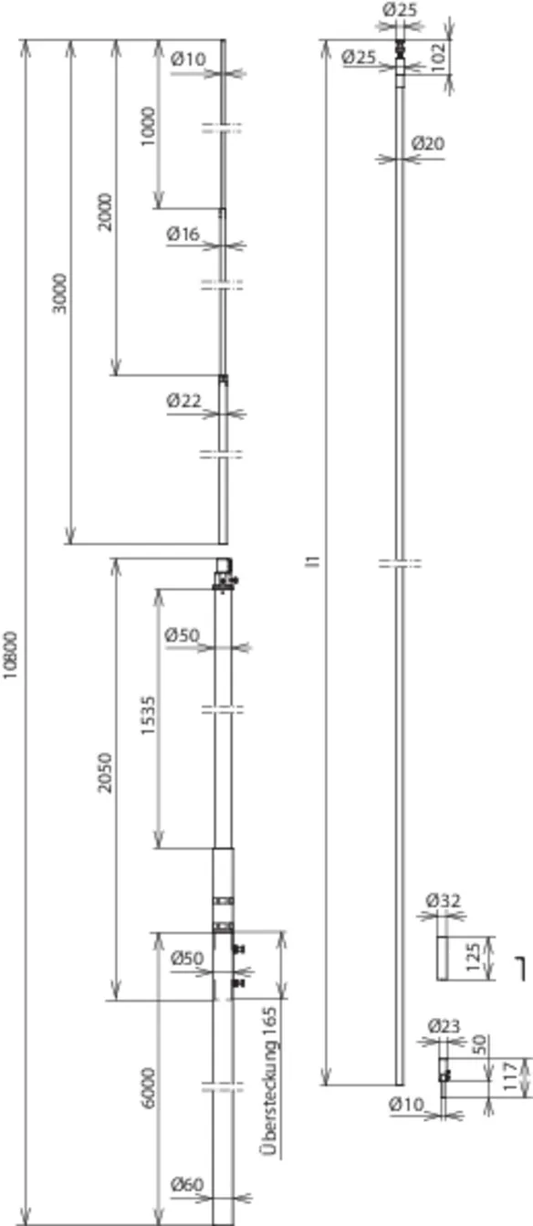
The air-termination masts are dimensioned according to Eurocode 1 (DIN EN 1991-1-4 + DIN EN 1991-1-4/NA).
The air-termination system consists of:
– Al air-termination rod, Ø22/16/10 mm, 3000 mm long
– GRP/Al supporting tube, Ø50/60 mm
– mast pipe, St/tZn, Ø60 mm
and
3 variable supports (Part No. 105 345)
Maximum free length of the overall air-termination system of 8.5 m.
With 1x integrated HVI Conductor I, minimum order length of 10 m
Further lengths of the HVI Conductor have to be ordered separately.
Maximum total length of the HVI Conductor (LPS II): 12.5 m
Maximum total length of the HVI Conductor (LPS III): 18.5 m
Total length of air-termination mast: 10800 mm
Length of air-termination rod: 3000 mm
Length of supporting tube: 2100 mm
Length of mast pipe: 6000 mm
Diameter Ø conductor: 20 mm
Colour of conductor: black ●
Material of conductor: Cu
Minimum order length: 10 m
Max. gust wind speed: See wind load pamphlet
Standard: DIN IEC/TS 62561-8 (VDE V 0185-561-8)

Brand: DEHN
Type: FM 60 L11M IP HVI M L10M GFK AL STTZN
Part No.: 819730
or equivalent.

Certificates

 

Technical data

Total length of air-termination mast 10800 mm
Length of air-termination rod 3000 mm
Length of supporting tube 2100 mm
Length of mast pipe 6000 mm
Colour of conductor black ●
Minimum order length 10 m
Standard DIN IEC/TS 62561-8 (VDE V 0185-561-8)

Product 819730 was added to Notepad.

Product 819730 was added to the cart.


back to top