Self-supporting Air-Termination Rods 2.5 to 3.5 m

Self-supporting air-termination rods with tripod for protecting roof-mounted structures, adjustable to a roof pitch up to max. 10°.

The concrete base (Part No. 102 075 or 102 010) and the plastic base plate (Part No. 102 060 or 102 050) have to be ordered separately.

Components:
– Tapered tubular air-termination rod Ø40 / 16 / 10 mm and Ø22 / 16 / 10 mm
– Connection clamp (rod clamp) for 8–10‑mm round steel
– Tripod for concrete base with fixing wedge

Note: Permissible roof loads have to be considered and checked with the constructor where required.

For air-termination rods Ø22 mm

3 Products

Part No. 105525 FS 22 16 10 2500 AL DBS R320 STTZN

GTIN 4013364241985, Customs tariff No. (EU): 85389099, Gross weight: 3.40 kg, PU: 1.00 pc(s)

Predecessor

Images

Additional information

Self-supporting air-termination rod, 2500 mm high
Self-supporting air-termination rod with tripod
for protecting roof-mounted structures,
adjustable to a roof inclination up to max. 10 degrees.
The air-termination rods are dimensioned according to
Eurocode 1 (DIN EN 1991-1-4 + DIN EN 1991-1-4/NA) for a
max. gust wind speed of 185 km/h.
The stackable concrete base (Part No. 102 075 or 102 010) and
the base plate (Part No. 102 060 or 102 050) have to be ordered separately.
Height: 2500 mm
Radius: 320 mm
Space required for tripod with 3 bases, 8.5 kg each : 730 x 800 mm
Space required for tripod with 3 bases, 17 kg each: 850 x 930 mm
Material of air-termination rod: Al
Material of tripod: St/tZn
Standard: EN 62561-(1+2)

Brand: DEHN
Type: FS 22 16 10 2500 AL DBS R320 STTZN
Part No.: 105525
or equivalent.

Certificates

 

Technical data

Height 2500 mm
Radius 320 mm
Space required for tripod with 3 bases, 8.5 kg each (l x w) 730 x 800 mm
Space required for tripod with 3 bases, 17 kg each (l x w) 850 x 930 mm
Max. gust wind speed See wind load pamphlet
Material of air-termination rod Al
Material of tripod St/tZn
Standard EN 62561-(1+2)

Product 105525 was added to Notepad.

Product 105525 was added to the cart.

Part No. 105530 FS 22 16 10 3000 AL DBS R320 STTZN

GTIN 4013364242029, Customs tariff No. (EU): 85389099, Gross weight: 3.80 kg, PU: 1.00 pc(s)

Predecessor

Images

Additional information

Self-supporting air-termination rod, 3000 mm high
Self-supporting air-termination rod with tripod
for protecting roof-mounted structures,
adjustable to a roof inclination up to max. 10 degrees.
The air-termination rods are dimensioned according to
Eurocode 1 (DIN EN 1991-1-4 + DIN EN 1991-1-4/NA)
for a max. gust wind speed of 168 km/h.
The stackable concrete base (Part No. 102 075 or 102 010) and
the base plate (Part No. 102 060 or 102 050) have to be ordered separately.
Height: 3000 mm
Radius: 320 mm
Space required for tripod with 3 bases, 8.5 kg each : 730 x 800 mm
Space required for tripod with 3 bases, 17 kg each: 850 x 930 mm
Material of air-termination rod: Al
Material of tripod: St/tZn
Standard: EN 62561-(1+2)

Brand: DEHN
Type: FS 22 16 10 3000 AL DBS R320 STTZN
Part No.: 105530
or equivalent.

Certificates

 

Technical data

Height 3000 mm
Radius 320 mm
Space required for tripod with 3 bases, 8.5 kg each (l x w) 730 x 800 mm
Space required for tripod with 3 bases, 17 kg each (l x w) 850 x 930 mm
Max. gust wind speed See wind load pamphlet
Material of air-termination rod Al
Material of tripod St/tZn
Standard EN 62561-(1+2)

Product 105530 was added to Notepad.

Product 105530 was added to the cart.

Part No. 105535 FS 22 16 10 3500 AL DBS R320 STTZN

GTIN 4013364242043, Customs tariff No. (EU): 85389099, Gross weight: 4.30 kg, PU: 1.00 pc(s)

Predecessor

Images

Additional information

Self-supporting air-termination rod, 3500 mm high
Self-supporting air-termination rod with tripod
for protecting roof-mounted structures,
adjustable to a roof inclination up to max. 10 degrees.
The air-termination rods are dimensioned according to
Eurocode 1 (DIN EN 1991-1-4 + DIN EN 1991-1-4/NA)
for a max. gust wind speed of 135 km/h.
The stackable concrete base (Part No. 102 075 or 102 010) and
the base plate (Part No. 102 060 or 102 050) have to be ordered separately.
Height: 3500 mm
Radius: 320 mm
Space required for tripod with 3 bases, 8.5 kg each : 730 x 800 mm
Space required for tripod with 3 bases, 17 kg each: 850 x 930 mm
Material of air-termination rod: Al
Material of tripod: St/tZn
Standard: EN 62561-(1+2)

Brand: DEHN
Type: FS 22 16 10 3500 AL DBS R320 STTZN
Part No.: 105535
or equivalent.

Certificates

 

Technical data

Height 3500 mm
Radius 320 mm
Space required for tripod with 3 bases, 8.5 kg each (l x w) 730 x 800 mm
Space required for tripod with 3 bases, 17 kg each (l x w) 850 x 930 mm
Max. gust wind speed See wind load pamphlet
Material of air-termination rod Al
Material of tripod St/tZn
Standard EN 62561-(1+2)

Product 105535 was added to Notepad.

Product 105535 was added to the cart.


For air-termination rods Ø40 mm

2 Products

Part No. 105531 FS D40 16 10 3000 AL DBS KB STTZN

GTIN 4013364535893, Customs tariff No. (EU): 85389099, Gross weight: 11.00 kg, PU: 1.00 pc(s)


Images

Additional information

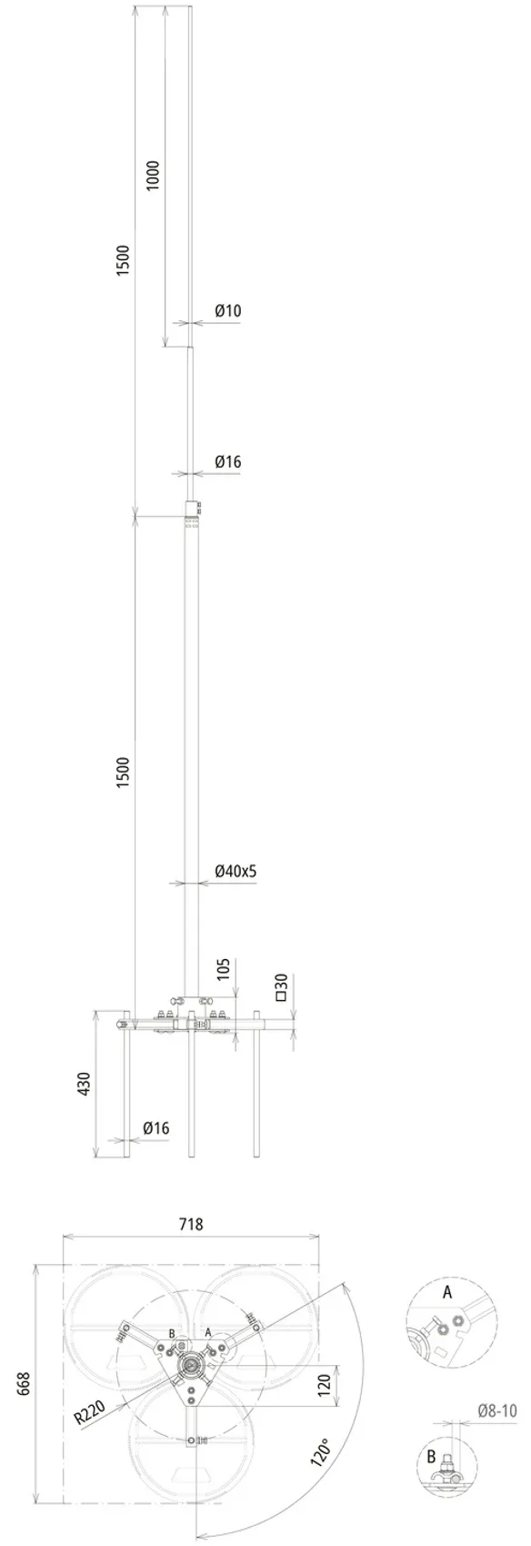
Self-supporting air-termination rod; height: 3,000 mm
Self-supporting air-termination rods with tripod
for protecting roof-mounted structures,
Adjustable to the roof slope up to max. 10 degrees.
The air-termination rods are dimensioned to Eurocode 1
(DIN EN 1991-1-4 + DIN EN 1991-1-4/NA).
The stackable concrete base (Part No. 102 010) and
the plastic base plate (Part No. 102 050) must be ordered
separately.
Height: 3,000 mm
Radius: 220 mm
Space requirements for stand with concrete base of 17 kg: 668 x 718 mm
Material of air-termination rod: Al
Stand material: HDG steel
Standard: DIN EN 62561-(1+2)
Height: 3000 mm
Radius: 220 mm
Space required for tripod: 668 x 718 mm
Material of air-termination rod: Al
Material of tripod: St/tZn
Standard: EN 62561-(1+2)

Brand: DEHN
Type: FS D40 16 10 3000 AL DBS KB STTZN
Part No.: 105531
or equivalent.

 

Technical data

Height 3000 mm
Radius 220 mm
Max. gust wind speed See wind load pamphlet
Space required for tripod (l x w) 668 x 718 mm
Material of air-termination rod Al
Material of tripod St/tZn
Standard EN 62561-(1+2)

Product 105531 was added to Notepad.

Product 105531 was added to the cart.

Part No. 105536 FS D40 16 10 3500 AL DBS KB STTZN

GTIN 4013364535909, Customs tariff No. (EU): 85389099, Gross weight: 11.80 kg, PU: 1.00 pc(s)


Images

Additional information

Self-supporting air-termination rod; height: 3,500 mm
Self-supporting air-termination rods with tripod
for protecting roof-mounted structures,
Adjustable to the roof slope up to max. 10 degrees.
The air-termination rods are dimensioned to Eurocode 1
(DIN EN 1991-1-4 + DIN EN 1991-1-4/NA).
The stackable concrete base (Part No. 102 010) and
the plastic base plate (Part No. 102 050) must be ordered
separately.
Height: 3,500 mm
Radius: 220 mm
Space requirements for stand with concrete base of 17 kg: 668 x 718 mm
Material of air-termination rod: Al
Stand material: HDG steel
Standard: DIN EN 62561-(1+2)
Height: 3500 mm
Radius: 220 mm
Space required for tripod: 668 x 718 mm
Material of air-termination rod: Al
Material of tripod: St/tZn
Standard: EN 62561-(1+2)

Brand: DEHN
Type: FS D40 16 10 3500 AL DBS KB STTZN
Part No.: 105536
or equivalent.

 

Technical data

Height 3500 mm
Radius 220 mm
Max. gust wind speed See wind load pamphlet
Space required for tripod (l x w) 668 x 718 mm
Material of air-termination rod Al
Material of tripod St/tZn
Standard EN 62561-(1+2)

Product 105536 was added to Notepad.

Product 105536 was added to the cart.


back to top