Air-termination Mast with HVI power Conductor

For a maximum free length of the whole air-termination system of 8.5 m, minimum order length 10 m.
To be fixed with three variable supports (Part No. 105 345).

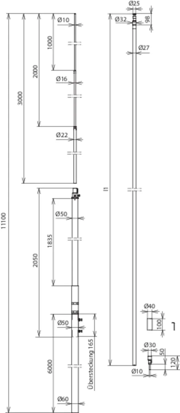
The separable air-termination mast consists of:
– Air-termination rod Al Ø22 / 16 / 10 mm, length 3000 mm
– Supporting tube GRP/Al Ø50 / 60 mm, length 2300 mm (telescoping of 200 mm)
– Mast pipe St/tZn Ø60 mm, length 6000 mm with M10 locking screws, StSt
– HVI power Conductor installed inside the supporting tube
– Transport length 6000 mm

With 1x HVI power Conductor inside the supporting tube. Conductor length has be stated when ordering (steps of 0.5 m).

Maximum total length of the HVI power Conductor 11.0 m in case of class of LPS I.
Maximum total length of the HVI power Conductor 15.0 m in case of class of LPS II.
Maximum total length of the HVI power Conductor 22.5 m in case of class of LPS III.

1 Product

Part No. 819760 FM 60 L11M IP HVIP L10M GFK AL STTZN

GTIN 4013364240391, Customs tariff No. (EU): 85389099, Gross weight: 57.89 kg, PU: 1.00 pc(s)

Predecessor

Images

Additional information

Air-termination masts with HVI power Conductor
High-voltage-resistant insulated down conductor for maintaining
the separation distance from conductive parts according to IEC 62305-3
Particularly for applications such as the fermenters or gas tanks of biogas plants
according to class II of the LPS.
The air-termination masts are dimensioned according to Eurocode 1 (DIN EN 1991-1-4 + DIN EN 1991-1-4/NA).
The air-termination system consists of:
-Air-termination rod Al Ø22/16/10 mm length 3000 mm
-Supporting tube GRP/Al Ø50/60 mm
-Mast pipe St/tZn Ø60 mm
additionally
3 variable holders (Part No. 105 345)
Maximum free length of the total air-termination system: 8.5 m
Version with one HVI power Conductor installed inside the supporting tube
Conductor length: 10.0 m
Additionally required lengths of the HVI power Conductor
must be ordered separately.
Maximum total length of the HVI power Conductor (LPS I): 11.0 m
Maximum total length of the HVI power Conductor (LPS II): 15.0 m
Maximum total length of the HVI power Conductor (LPS III): 22.5 m
Total length of air-termination mast: 11000 mm
Length of air-termination rod: 3000 mm
Length of supporting tube: 2300 mm
Length of mast pipe: 6000 mm
Diameter Ø conductor: 27 mm
Colour of conductor: black ●
Material of conductor: Cu
Minimum order length: 10 m
Maximum order length: 35 m
Max. gust wind speed: See wind load pamphlet
Standard: DIN IEC/TS 62561-8 (VDE V 0185-561-8)

Brand: DEHN
Type: FM 60 L11M IP HVIP L10M GFK AL STTZN
Part No.: 819760
or equivalent.

Certificates

 

Technical data

Total length of air-termination mast 11000 mm
Length of air-termination rod 3000 mm
Material of air-termination rod Al
Length of supporting tube 2300 mm
Material of supporting tube GRP / Al
Length of mast pipe 6000 mm
Material of mast pipe St/tZn
Diameter Ø conductor 27 mm
Colour of conductor black ●
Material of conductor Cu
Minimum order length 10 m
Maximum order length 35 m
Suitable for installation outside tube no
Standard DIN IEC/TS 62561-8 (VDE V 0185-561-8)

Product 819760 was added to Notepad.

Product 819760 was added to the cart.


back to top