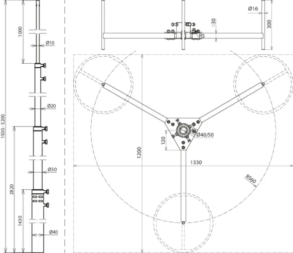
Part No. 105711 FS T D40 1.5 5.2M AL DBS RA560 STTZN
GTIN 4013364500976, Customs tariff No. (EU): 85389099, Gross weight: 13.79 kg, PU: 1.00 pc(s)
Technical data
| Height | 5200 mm |
| Air-termination tip (Ø length) | 10-1000 mm |
| Termination mast (Ø length) | 40/30/20-4200 mm |
| Radius | 560 mm |
| Space required for stand | 1210 x 1340 mm |
| Stand material | HDG steel (St/tZn) |
| Air-termination mast material | Al |
| Standard | DIN EN 62561-(1+2) |
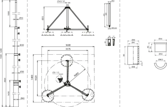
Part No. 105713 FS T D50 1.6 6.5M AL DBS RA1435 STTZN
GTIN 4013364501041, Customs tariff No. (EU): 85389099, Gross weight: 26.32 kg, PU: 1.00 pc(s)
Technical data
| Height | 6500 mm |
| Air-termination tip (Ø length) | 10-1000 mm |
| Termination mast (Ø length) | 50/40/30/20-5500 mm |
| Radius | 1435 mm |
| Space required for stand | 2850 x 2530 mm |
| Stand material | HDG steel (St/tZn) |
| Air-termination mast material | Al |
| Standard | DIN EN 62561-(1+2) |
Part No. 105716 FS T D50 1.8 8.0M AL DBS RA1435 STTZN
GTIN 4013364501072, Customs tariff No. (EU): 85389099, Gross weight: 29.28 kg, PU: 1.00 pc(s)
Technical data
| Height | 8000 mm |
| Air-termination tip (Ø length) | 10-1000 mm |
| Termination mast (Ø length) | 50/60/50/40/30/20-7000 mm |
| Radius | 1435 mm |
| Space required for stand | 2850 x 2530 mm |
| Stand material | HDG steel (St/tZn) |
| Air-termination mast material | Al |
| Standard | DIN EN 62561-(1+2) |
Part No. 105710 FS T D40 1.5 5.2M AL DBS RA680 V2A
GTIN 4013364500969, Customs tariff No. (EU): 85389099, Gross weight: 12.58 kg, PU: 1.00 pc(s)
Technical data
| Height | 5200 mm |
| Air-termination tip (Ø length) | 10-1000 mm |
| Termination mast (Ø length) | 40/30/20-4200 mm |
| Radius | 680 mm |
| Space required for stand | 1400 x 1600 mm |
| Stand material | StSt |
| Air-termination mast material | Al |
| Standard | DIN EN 62561-(1+2) |
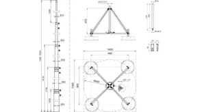
Part No. 105712 FS T D50 1.6 6.5M AL VBS RA680 V2A
GTIN 4013364500983, Customs tariff No. (EU): 85389099, Gross weight: 16.77 kg, PU: 1.00 pc(s)
Technical data
| Height | 6500 mm |
| Air-termination tip (Ø length) | 10-1000 mm |
| Termination mast (Ø length) | 50/40/30/20-5500 mm |
| Radius | 680 mm |
| Space required for stand | 1400 x 1400 mm |
| Stand material | StSt |
| Air-termination mast material | Al |
| Standard | DIN EN 62561-(1+2) |
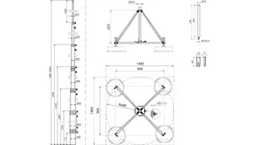
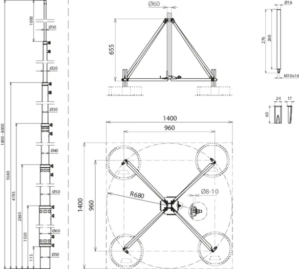
Part No. 105714 FS T D50 1.8 8.0M AL VBS RA680 V2A
GTIN 4013364501058, Customs tariff No. (EU): 85389099, Gross weight: 19.95 kg, PU: 1.00 pc(s)
Technical data
| Height | 8000 mm |
| Air-termination tip (Ø length) | 10-1000 mm |
| Termination mast (Ø length) | 50/60/50/40/30/20-7000 mm |
| Radius | 680 mm |
| Space required for stand | 1400 x 1400 mm |
| Stand material | StSt |
| Air-termination mast material | Al |
| Standard | DIN EN 62561-(1+2) |
Part No. 105715 FS T D50 1.8 8.0M AL VBS RA1330 V2A
GTIN 4013364501065, Customs tariff No. (EU): 85389099, Gross weight: 30.45 kg, PU: 1.00 pc(s)
Technical data
| Height | 8000 mm |
| Air-termination tip (Ø length) | 10-1000 mm |
| Termination mast (Ø length) | 50/60/50/40/30/20-7000 mm |
| Radius | 1330 mm |
| Space required for stand | 2300 x 2300 mm |
| Stand material | StSt |
| Air-termination mast material | Al |
| Standard | DIN EN 62561-(1+2) |