Trípodes para tubos de soporte con salida lateral

Trípodes para alojamiento de tubos autosoportados HVI para cable HVI tendido en el interior/exterior del tubo autosoportado, con caballete de sujeción doble para la conexión de 2 Rd 8-10 mm. Ajuste en la pendiente de tejado hasta máx. 10° con fijación variable en el soporte de la base.

En cada accesorio disponible por separado se encuentran los zócalos de hormigón apilables, la placa protectora y el conjunto de soportes de la base para el alojamiento de más zócalos de hormigón.

Nota: Se puede solicitar más información a DEHN sobre la compatibilidad de materiales del soporte de conductores para tejados, así como de las placas protectoras junto con partes de tejados.

Trípode pequeño

Para varillas captadoras D40, tubos autosoportados DEHNiso-Combi con punta o varilla captadora o bien cable HVI tendido dentro o fuera del tubo autosoportado.

1 Product

Part No. 107390 DBS KB D50 RA680 V2A

GTIN 4013364478466, Customs tariff No. (EU): 85389099, Gross weight: 7.75 kg, PU: 1.00 unidad(es)

Predecessor

Images

Additional information

Trípode pequeño INOX (diseño plegable)
Trípode (diseño plegable) para tubos autosoportados
D 50 mm con salida lateral o varilla captadora
D 40 mm con accesorios reducidos
Con caballete de sujeción doble para la conexión de 2 Rd 8-10 mm
Para la instalación con zócalo de hormigón (peso 17 kg)
Compensación de ángulo de pendiente de tejado hasta máx. 10°
Zócalo de hormigón apilable (ref. 102 010)
Placa protectora (ref. 102 050)
Conjunto de soportes de la base (ref. 107 396)
Accesorios reductores (ref. 107 399)
se solicitan por separado.
Las dimensiones de los trípodes son según
el Eurocódigo 1 (DIN EN 1991-1-4 + DIN EN 1991-1-4/NA).

Material del trípode: INOX
Soporte: 50 y 40*) mm
Radio: 680 mm

Producto DEHN
Tipo: DBS KB D50 RA680 V2A
art. no.: 107390
o equivalente

Certificates

 

Technical data

Material del trípode INOX
Soporte 50 y 40*) mm
Radio 680 mm
Espacio necesario para el trípode 1175 x 1020 mm
*) Solo con kit de adaptadores ref. 107 399.

Product 107390 was added to Notepad.

Product 107390 was added to the cart.


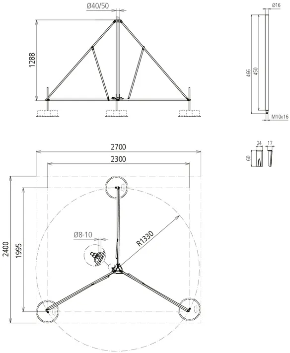
Trípode grande

Para varillas captadoras D40, tubos autosoportados DEHNiso-Combi con punta o varilla captadora o bien cable HVI tendido dentro o fuera del tubo autosoportado.

1 Product

Part No. 107391 DBS KB D50 RA1330 V2A

GTIN 4013364478473, Customs tariff No. (EU): 85389099, Gross weight: 15.60 kg, PU: 1.00 unidad(es)

Predecessor

Images

Additional information

Trípode grande INOX (diseño plegable)
Trípode (diseño plegable) para tubos autosoportados
D 50 mm con salida lateral y caballete de sujeción doble para
la conexión de 2 Rd 8-10 mm, para la instalación con
zócalo de hormigón (peso de 17 kg) con ajuste mediante
conjunto de soportes de la base en la pendiente de tejado hasta máx. 10°.
Zócalo de hormigón apilable (ref. 102 010)
Placa protectora (ref. 102 050)
Conjunto de soportes de la base (ref. 107 396)
Accesorios reductores (ref. 107 399)
se solicitan por separado.
Las dimensiones de los trípodes son según
el Eurocódigo 1 (DIN EN 1991-1-4 + DIN EN 1991-1-4/NA).

Material del trípode: INOX
Soporte: 50 y 40*) mm
Radio: 1330 mm

Producto DEHN
Tipo: DBS KB D50 RA1330 V2A
art. no.: 107391
o equivalente

Certificates

 

Technical data

Material del trípode INOX
Soporte 50 y 40*) mm
Radio 1330 mm
Espacio necesario para el trípode 2300 x 1995 mm
*) Solo con kit de adaptadores ref. 107 399.

Product 107391 was added to Notepad.

Product 107391 was added to the cart.


Soporte de cuatro patas pequeño

Para varillas captadoras D40, tubos autosoportados DEHNiso-Combi con punta o varilla captadora o bien cable HVI tendido dentro o fuera del tubo autosoportado.

1 Product

Part No. 107490 VBS KB D50 RA680 V2A

GTIN 4013364478480, Customs tariff No. (EU): 85389099, Gross weight: 10.38 kg, PU: 1.00 unidad(es)


Images

Additional information

Soporte de cuatro patas pequeño INOX (diseño plegable)
Soporte de cuatro patas (diseño plegable) para tubos autosoportados
D 50 mm con salida lateral o varilla captadora
D 40 mm con accesorios reducidos
Con caballete de sujeción doble para la conexión de 2 Rd 8-10 mm
Para la instalación con zócalo de hormigón (peso 17 kg)
Compensación de ángulo de pendiente de tejado hasta máx. 10°
Zócalo de hormigón apilable (ref. 102 010)
Placa protectora (ref. 102 050)
Conjunto de soportes de la base (ref. 107 396)
Accesorios reductores (ref. 107 399)
se solicitan por separado.
Las dimensiones de los soportes de cuatro patas son según
el Eurocódigo 1 (DIN EN 1991-1-4 + DIN EN 1991-1-4/NA).

Material del trípode: INOX
Soporte: 50 y 40*) mm
Radio: 680 mm

Producto DEHN
Tipo: VBS KB D50 RA680 V2A
art. no.: 107490
o equivalente

Certificates

 

Technical data

Material del trípode INOX
Soporte 50 y 40*) mm
Radio 680 mm
Espacio necesario para el trípode 960 x 960 mm
*) Solo con kit de adaptadores ref. 107 399.

Product 107490 was added to Notepad.

Product 107490 was added to the cart.


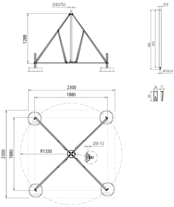
Soporte de cuatro patas grande

Para varillas captadoras D40, tubos autosoportados DEHNiso-Combi con punta o varilla captadora o bien cable HVI tendido dentro o fuera del tubo autosoportado.

1 Product

Part No. 107491 VBS KB D50 RA1330 V2A

GTIN 4013364478497, Customs tariff No. (EU): 85389099, Gross weight: 17.63 kg, PU: 1.00 unidad(es)


Images

Additional information

Soporte de cuatro patas grande INOX (diseño plegable)
Soporte de cuatro patas (diseño plegable) para tubos autosoportados
D 50 mm con salida lateral o varilla captadora
D 40 mm con accesorios reducidos
Con caballete de sujeción doble para la conexión de 2 Rd 8-10 mm
Para la instalación con zócalo de hormigón (peso 17 kg)
Compensación de ángulo de pendiente de tejado hasta máx. 10°
Zócalo de hormigón apilable (ref. 102 010)
Placa protectora (ref. 102 050)
Conjunto de soportes de la base (ref. 107 396)
Accesorios reductores (ref. 107 399)
se solicitan por separado.
Las dimensiones de los soportes de cuatro patas son según
el Eurocódigo 1 (DIN EN 1991-1-4 + DIN EN 1991-1-4/NA).

Material del trípode: INOX
Soporte: 50 y 40*) mm
Radio: 1330 mm

Producto DEHN
Tipo: VBS KB D50 RA1330 V2A
art. no.: 107491
o equivalente

Certificates

 

Technical data

Material del trípode INOX
Soporte 50 y 40*) mm
Radio 1330 mm
Espacio necesario para el trípode 1880 x 1880 mm
*) Solo con kit de adaptadores ref. 107 399.

Product 107491 was added to Notepad.

Product 107491 was added to the cart.


back to top