Mástil captador con cable HVI power

Para una longitud máxima libre del elemento captador total de 8,5 m longitud mínima de pedido 10 m.
Debe hacerse la fijación con tres soportes variables (Art Nº 105 345).

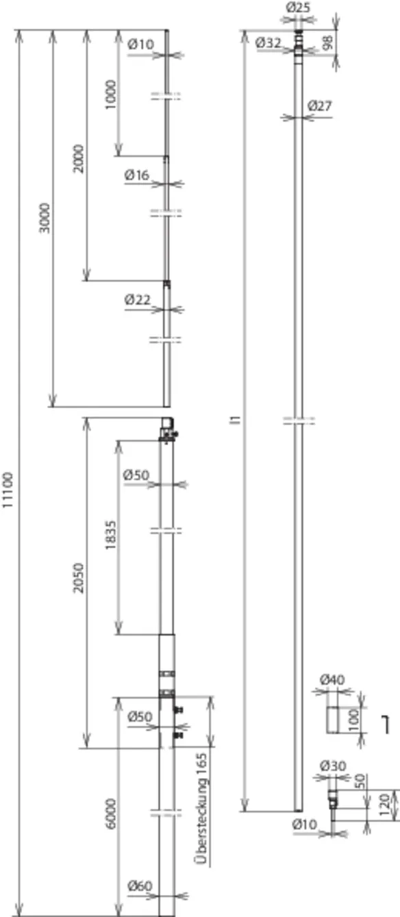
El mástil captador modular consta de:
– varilla captadora Al Ø22 / 16 / 10 mm, longitud de 3000 mm
– tubo aislante autosoportado en poliéster reforzado con fibra de vidrio/Al Ø50 / 60 mm, longitud 2300 mm (prolongación 200 mm)
– Tubo del mástil St/tZn Ø60 mm, longitud 6000 m con tornillos de bloqueo M10 en acero inoxidable
– Cable HVI power tendido interiormente
– Longitud de transporte 6000 mm

Mástil captador con cable HVI power

Versión con 1x cable HVI power tendido interiormente. Indicar la longitud de cable al efectaur el pedido (en múltiplos de 0,5 m).

Longitud total máxima del cable HVI power 11,0 m con clase de protección I de la instalación de protección contra rayos.
Longitud total máxima del cable HVI power 15,0 m con clase de protección II de la instalación de protección contra rayos.
Longitud total máxima del cable HVI power 22,5 m con clase de protección III de la instalación de protección contra rayos.

1 Product

Part No. 819760 FM 60 L11M IP HVIP L10M GFK AL STTZN

GTIN 4013364240391, Customs tariff No. (EU): 85389099, Gross weight: 57.89 kg, PU: 1.00 unidad(es)

Predecessor

Images

Additional information

Mástiles captadores con el cable HVI power
Mástiles captadores con el cable HVI power
Electrodo de dispersión aislado resistente a la alta tensión
para mantener la distancia de separación
de partes con conductividad eléctrica
según la DIN EN 62305-3 (VDE 0185-305-3)
Especialmente para su utilización con p. ej. fermentadores
o almacenamientos subterráneos de plantas de biogás
segón el nivel de protección II del sistema de protección contra rayos.
Los mástiles captadores están dimensionados según
el eurocódigo 1 (DIN EN 1991-1-4 + DIN EN 1991-1-4/NA).
La instalación captadora se compone de:
- Varilla captadora Al Ø22/16/10 mm longitud 3000 mm
- Tubo autosoportado PRFV/Al Ø50/60 mm
- Mástil (tubo) St/tZn Ø60 mm
más
3 piezas de soportes variables (Art.-Nr. 105 345)
Máx. longitud libre de la instalación captadora completa de 8,5 m
Versión con 1x cable HVI power tendido en el interior
Mín. longitud de pedido 10,0 m.
Longitudes adicionales del cable HVI power tienen que pedirse separadamente.
Máx. longitud total del cable HVI power (LPS I) 11,0 m.
Máx. longitud total del cable HVI power (LPS II) 15,0 m.
Máx. longitud total del cable HVI power (LPS III) 22,5 m.
Longitud total del mástil captador: 11000 mm
Longitud de la varilla captadora: 3000 mm
Longitud del tubo aislante autosoportado: 2300 mm
Longitud del tubo de mástil: 6000 mm
Diàmetro Ø del cable: 27 mm
Color del cable: negro ●
Material del cable: Cu
Longitud mínima de pedido : 10 m
Longitud máxima de pedido : 35 m
Máx. velocidad del viento : (máx. longitud libre 8500 mm, 1x HVI power en el interior) 138 km/h
Normativa: DIN IEC/TS 62561-8 (VDE V 0185-561-8)

Producto DEHN
Tipo: FM 60 L11M IP HVIP L10M GFK AL STTZN
art. no.: 819760
o equivalente

Certificates

 

Technical data

Longitud total del mástil captador 11000 mm
Longitud de la varilla captadora 3000 mm
Material de la varilla captadora Al
Longitud del tubo aislante autosoportado 2300 mm
Material de tubo aislante autosoportado poliéster reforzado con fibra de vidrio / Al
Longitud del tubo de mástil 6000 mm
Material del tubo de mástil St/tZn
Diàmetro Ø del cable 27 mm
Color del cable negro ●
Material del cable Cu
Longitud mínima de pedido 10 m
Longitud máxima de pedido 35 m
Apropiado para el tendido del tubo al exterior no
Normativa DIN IEC/TS 62561-8 (VDE V 0185-561-8)

Product 819760 was added to Notepad.

Product 819760 was added to the cart.


back to top