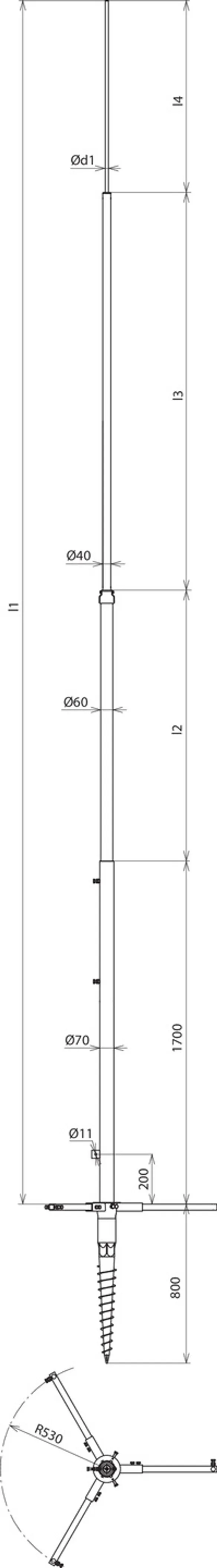
Mâts de capture téléscopiques avec embase à visser

Mâts de capture pour la protection d’installations spéciales, par ex. des installations photovoltaïques ou biogaz sur terrain plat, contre les coups de foudre directs.
Ces mâts sont à visser sur une embase.
Des travaux de terrassement ou de fondation ne sont pas nécessaires.
L’embase est à visser simplement dans le sol sans préparation particulière et à fixer avec des piquets de terre.

Afin de renforcer la fixation, 3 piquets de terre de Ø20 mm et de 1500 mm de longueur (référence 620 151) sont nécessaires pour chaque embase à visser. Ils doivent doit être commandés séparément.

Les mâts de capture sont dimensionnés selon Eurocode 1 (DIN EN 1991-1-4 + DIN EN 1991-1-4/NA).
Ces calculs se basent sur une pression appliquée de 0,02 kN/cm2 du sol naturel (par ex. glaise, sable, gravier d’épaisseur moyenne).

Éléments :
– Mât de capture en St/tZn et Al avec rétrécissement Ø70 / 60 / 40 mm
– Pointe de capture en Al Ø22 / 16 / 10 mm Longueur 2500 m ou INOX Ø10 mm Longueur 1000 mm
– Embase à visser en St/tZn de 800 mm de longueur avec étais de 530 mm de longueur et vis d’arrêt M10 avec contre-écrou
– Collier de raccordement à la terre perçage Ø11 mm

Avantages :
– Facilité de montage grâce à la structure avec rétrécissement en St/tZn et aluminium
– Si nécessaire, le mât de capture peut simplement être enlevé de son embase et déposé

6 Products

Part No. 103121 TBM 6M SCFU STTZN AL

GTIN 4013364112711, Customs tariff No. (EU): 85389099, Gross weight: 33.00 kg, PU: 1.00 pièce(s)


Images

Additional information

Mât de protection contre la foudre avec embase à visser 6000 mm
Mât de protection contre la foudre avec embase à visser
pour la protection contre la foudre d’installations spéciales
par ex. installations photovoltaïques et biogaz en terrain plat, contre les impacts directs de foudre.
Des travaux de terrassement ou de fondation ne sont pas nécessaires.
L’embase est à visser simplement dans le sol sans
préparation particulière dans un sol naturel
et à fixer avec des piquets de terre.
Afin de renforcer la fixation, 3 piquets de
terre de Ø20 mm et de 1500 mm de longueur (référence 620 151) sont nécessaires pour chaque embase à visser (à commander
séparément).
Les mâts télescopiques de protection contre la foudre avec embase à visser sont dimensionnés selon
Eurocode 1 (DIN EN 1991-1-4 + DIN EN 1991-1-4/NA) pour une vitesse de vent en rafales
max. de 229 km/h.
Matériau: St/tZn / Al / INOX
Hauteur au-dessus du sol: 6000 mm
Normes: NF EN 62561-(1+2)

produit : DEHN
Type: TBM 6M SCFU STTZN AL
Référence: 103121
ou équivalent

Certificates

 

Technical data

Matériau St/tZn / Al / INOX
Hauteur au-dessus du sol (l1) 6000 mm
Vitesse de vent/rafales max. 229 km/h
Normes NF EN 62561-(1+2)

Product 103121 was added to Notepad.

Product 103121 was added to the cart.

Part No. 103122 TBM 7M SCFU STTZN AL

GTIN 4013364112728, Customs tariff No. (EU): 85389099, Gross weight: 33.20 kg, PU: 1.00 pièce(s)


Images

Additional information

Mât de protection contre la foudre avec embase à visser 7000 mm
Mât de protection contre la foudre avec embase à visser
pour la protection contre la foudre d’installations spéciales
par ex. installations photovoltaïques et biogaz en terrain plat, contre les impacts directs de foudre.
Des travaux de terrassement ou de fondation ne sont pas nécessaires.
L’embase est à visser simplement dans le sol sans
préparation particulière dans un sol naturel
et à fixer avec des piquets de terre.
Afin de renforcer la fixation, 3 piquets
de terre de Ø20 mm et de 1500 mm de longueur (référence 620 151) sont nécessaires pour chaque embase à visser (à commander
séparément).
Les mâts télescopiques de protection contre la foudre avec embase à visser sont dimensionnés selon
Eurocode 1 (DIN EN 1991-1-4 + DIN EN 1991-1-4/NA) pour une vitesse de vent en rafales
max. de 185 km/h.
Matériau: St/tZn / Al
Hauteur au-dessus du sol: 7000 mm
Normes: NF EN 62561-(1+2)

produit : DEHN
Type: TBM 7M SCFU STTZN AL
Référence: 103122
ou équivalent

Certificates

 

Technical data

Matériau St/tZn / Al
Hauteur au-dessus du sol (l1) 7000 mm
Vitesse de vent/rafales max. 185 km/h
Normes NF EN 62561-(1+2)

Product 103122 was added to Notepad.

Product 103122 was added to the cart.

Part No. 103123 TBM 8M SCFU STTZN AL

GTIN 4013364112735, Customs tariff No. (EU): 85389099, Gross weight: 37.60 kg, PU: 1.00 pièce(s)


Images

Additional information

Mât de protection contre la foudre avec embase à visser 8000 mm
Mât de protection contre la foudre avec embase à visser
pour la protection contre la foudre d’installations spéciales
par ex. installations photovoltaïques et biogaz en terrain plat, contre les impacts directs de foudre.
Des travaux de terrassement ou de fondation ne sont pas nécessaires.
L’embase est à visser simplement dans le sol sans
préparation particulière dans un sol naturel
et à fixer avec des piquets de terre.
Afin de renforcer la fixation, 3 piquets
de terre de Ø20 mm et de 1500 mm de longueur (référence 620 151) sont nécessaires pour chaque embase à visser (à commander
séparément).
Les mâts télescopiques de protection contre la foudre avec embase à visser sont dimensionnés selon
Eurocode 1 (DIN EN 1991-1-4 + DIN EN 1991-1-4/NA) pour une vitesse de vent en rafales
max. de 177 km/h.
Matériau: St/tZn / Al / INOX
Hauteur au-dessus du sol: 8000 mm
Normes: NF EN 62561-(1+2)

produit : DEHN
Type: TBM 8M SCFU STTZN AL
Référence: 103123
ou équivalent

Certificates

 

Technical data

Matériau St/tZn / Al / INOX
Hauteur au-dessus du sol (l1) 8000 mm
Vitesse de vent/rafales max. 177 km/h
Normes NF EN 62561-(1+2)

Product 103123 was added to Notepad.

Product 103123 was added to the cart.

Part No. 103124 TBM 9M SCFU STTZN AL

GTIN 4013364112742, Customs tariff No. (EU): 85389099, Gross weight: 37.60 kg, PU: 1.00 pièce(s)


Images

Additional information

Mât de protection contre la foudre avec embase à visser 9000 mm
Mât de protection contre la foudre avec embase à visser
pour la protection contre la foudre d’installations spéciales
par ex. installations photovoltaïques et biogaz en terrain plat, contre les impacts directs de foudre.
Des travaux de terrassement ou de fondation ne sont pas nécessaires.
L’embase est à visser simplement dans le sol sans
préparation particulière dans un sol naturel
et à fixer avec des piquets de terre.
Afin de renforcer la fixation, 3 piquets
de terre de Ø20 mm et de 1500 mm de longueur (référence 620 151) sont nécessaires pour chaque embase à visser (à commander
séparément).
Les mâts télescopiques de protection contre la foudre avec embase à visser sont dimensionnés selon
Eurocode 1 (DIN EN 1991-1-4 + DIN EN 1991-1-4/NA) pour une vitesse de vent en rafales
max. de 159 km/h.
Matériau: St/tZn / Al
Hauteur au-dessus du sol: 9000 mm
Normes: NF EN 62561-(1+2)

produit : DEHN
Type: TBM 9M SCFU STTZN AL
Référence: 103124
ou équivalent

Certificates

 

Technical data

Matériau St/tZn / Al
Hauteur au-dessus du sol (l1) 9000 mm
Vitesse de vent/rafales max. 159 km/h
Normes NF EN 62561-(1+2)

Product 103124 was added to Notepad.

Product 103124 was added to the cart.

Part No. 103125 TBM 10M SCFU STTZN AL

GTIN 4013364112759, Customs tariff No. (EU): 85389099, Gross weight: 42.20 kg, PU: 1.00 pièce(s)


Images

Additional information

Mât de protection contre la foudre avec embase à visser 10000 mm
Mât de protection contre la foudre avec embase à visser
pour la protection contre la foudre d’installations spéciales
par ex. installations photovoltaïques et biogaz en terrain plat, contre les impacts directs de foudre.
Des travaux de terrassement ou de fondation ne sont pas nécessaires.
L’embase est à visser simplement dans le sol sans
préparation particulière dans un sol naturel
et à fixer avec des piquets de terre.
Afin de renforcer la fixation, 3 piquets
de terre de Ø20 mm et de 1500 mm de longueur (référence 620 151) sont nécessaires pour chaque embase à visser (à commander
séparément).
Les mâts télescopiques de protection contre la foudre avec embase à visser sont dimensionnés selon
Eurocode 1 (DIN EN 1991-1-4 + DIN EN 1991-1-4/NA)
pour une vitesse de vent en rafalesmax. de 116 km/h.
Matériau: St/tZn / Al / INOX
Hauteur au-dessus du sol: 10000 mm
Normes: NF EN 62561-(1+2)

produit : DEHN
Type: TBM 10M SCFU STTZN AL
Référence: 103125
ou équivalent

Certificates

 

Technical data

Matériau St/tZn / Al / INOX
Hauteur au-dessus du sol (l1) 10000 mm
Vitesse de vent/rafales max. 116 km/h
Normes NF EN 62561-(1+2)

Product 103125 was added to Notepad.

Product 103125 was added to the cart.

Part No. 103126 TBM 11M SCFU STTZN AL

GTIN 4013364112841, Customs tariff No. (EU): 85389099, Gross weight: 42.40 kg, PU: 1.00 pièce(s)


Images

Additional information

Mât de protection contre la foudre avec embase à visser 11000 mm
Mât de protection contre la foudre avec embase à visser
pour la protection contre la foudre d’installations spéciales
par ex. installations photovoltaïques et biogaz en terrain plat, contre les impacts directs de foudre.
Des travaux de terrassement ou de fondation ne sont pas nécessaires.
L’embase est à visser simplement dans le sol sans
préparation particulière dans un sol naturel
et à fixer avec des piquets de terre.
Afin de renforcer la fixation, 3 piquets
de terre de Ø20 mm et de 1500 mm de longueur (référence 620 151) sont nécessaires pour chaque embase à visser (à commander
séparément).
Les mâts télescopiques de protection contre la foudre avec embase à visser sont dimensionnés selon
Eurocode 1 (DIN EN 1991-1-4 + DIN EN 1991-1-4/NA)
pour une vitesse de vent en rafalesmax. de 112 km/h.
Matériau: St/tZn / Al
Hauteur au-dessus du sol: 11000 mm
Normes: NF EN 62561-(1+2)

produit : DEHN
Type: TBM 11M SCFU STTZN AL
Référence: 103126
ou équivalent

Certificates

 

Technical data

Matériau St/tZn / Al
Hauteur au-dessus du sol (l1) 11000 mm
Vitesse de vent/rafales max. 112 km/h
Normes NF EN 62561-(1+2)

Product 103126 was added to Notepad.

Product 103126 was added to the cart.


back to top