Mât de capture avec conducteur HVI power

Pour une longueur utile maximale de tout le dispositif de capture de 8,5 m, longueur de commande minimale : 10 m.
La fixation s’effectue au moyen de 3 supports variables (réf. 105 345).

Le mât de capture démontable se compose de :
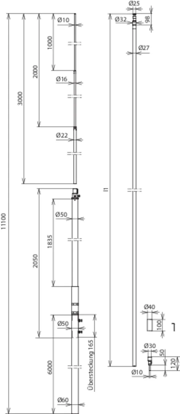
– Pointe de capture en Al de section Ø16/10 mm, longueur 3000 mm
– Tube support en PRV/Al Ø50/60 mm, longueur 2300 mm (recouvrement 200 mm)
– Tube de mât en St/tZn Ø60 mm, longueur 6000 mm avec vis d’arrêt M10 en INOX
– Conducteur HVI power monté intérieurement
– Longueur de transport 6000 mm

Version avec 1 x conducteur HVI power posé intérieurement.
Merci d'indiquer la longueur du conducteur lors de la commande.

Longueur maximale du conducteur HVI-power : 11,0 m pour un niveau de protection contre la foudre NPF : I
Longueur maximale du conducteur HVI-power : 15,0 m pour un niveau de protection contre la foudre NPF : II
Longueur maximale du conducteur HVI-power : 22,5 m pour un niveau de protection contre la foudre NPF : III

1 Product

Part No. 819760 FM 60 L11M IP HVIP L10M GFK AL STTZN

GTIN 4013364240391, Customs tariff No. (EU): 85389099, Gross weight: 57.89 kg, PU: 1.00 pièce(s)

Predecessor

Images

Additional information

Mâts de capture avec conducteur HVI power
Mâts de capture avec conducteur HVI power
dérivation isolée résistante aux hautes tensions
pour respecter la distance de séparation par rapport aux pièces conductrices

selon DIN EN 62305-3 (VDE 0185-305-3).
Spécialement conçu pour une utilisation par. ex pour les fermenteurs ou
les réservoirs de gaz des installations à biogaz
selon la classe de protection II du système de protection contre la foudre.
Les mâts de capture sont dimensionnés selon Eurocode 1 (DIN EN 1991-1-4 + DIN EN 1991-1-4/NA).

Le dispositif de capture est composé de :
-pointe de capture aluminium Ø22/16/10 mm Longueur 3000 mm
-tube support PRV/aluminium Ø50/60 mm
-tube de mât St/tZn Ø60 mm
plus
3 pièces de supports variables (Référence 105 345)
Longueur libre maximale du dispositif de capture entier de 8,5 m
Version avec 1x conducteur HVI power posé à l’intérieur,
Longueur minimale de commande 10,0 m.
Les autres longueurs de câblage requises pour le conducteur HVI power
doivent être commandées séparément.
Longueur totale maximale du conducteur HVI power (LPS I) 11,0 m.
Longueur totale maximale du conducteur HVI power (LPS II) 15,0 m.
Longueur totale maximale du conducteur HVI power (LPS III) 22,5 m.
Longueur totale - mât de capture: 11000 mm
Longueur - pointe de capture: 3000 mm
Longueur - tube support: 2300 mm
Longueur - tube de mât: 6000 mm
Diamètre Ø - conducteur: 27 mm
Couleur - conducteur: noir ●
Matériau - conducteur: Cu
Longueur de commande min.: 10 m
Commande max.: 35 m
Vitesse de vent/rafales max.: (longueur libre max. 8500 mm, 1x HVI power intérieur) 138 km/h
Norme: DIN IEC/TS 62561-8 (VDE V 0185-561-8)

produit : DEHN
Type: FM 60 L11M IP HVIP L10M GFK AL STTZN
Référence: 819760
ou équivalent

Certificates

 

Technical data

Longueur totale - mât de capture 11000 mm
Longueur - pointe de capture 3000 mm
Matériau - pointe de capture Al
Longueur - tube support 2300 mm
Matériau - tube support PRV / Al
Longueur - tube de mât 6000 mm
Matériau - tube de mât St/tZn
Diamètre Ø - conducteur 27 mm
Couleur - conducteur noir ●
Matériau - conducteur Cu
Longueur de commande min. 10 m
Commande max. 35 m
Approprié pour la pose en extérieur Non
Norme DIN IEC/TS 62561-8 (VDE V 0185-561-8)

Product 819760 was added to Notepad.

Product 819760 was added to the cart.


back to top