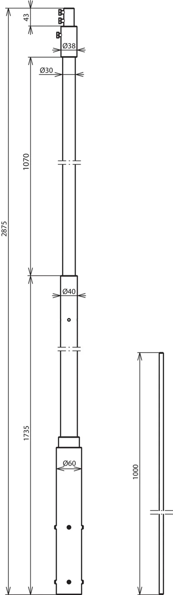
Tube support DEHNcon-H pour conducteur HVI light avec pointe de capture 1000 mm PRV/Alu Tubes support PRV/alu avec terminaison d’extrémité interne pour conducteur HVI light pour respecter la distance de séparation par rapport aux pièces conductrices selon DIN EN 62305 (VDE 0185-305-3). Les tubes support sont dimensionnés selon Eurocode 1 (DIN EN 1991-1-4 + DIN EN 1991-1-4/NA) pour une vitesse de vent en rafales max. de 149 km/h. Tige isolante en matière plastique à renfort de verre PRV Facteur de matériel km = 0,7 Couleur gris clair, résistante aux UV, en 1 pièce combiné à une pointe de capture Ø10 mm longueur 1000 mm en INOX
Normes: IEC/TS 62561-8
produit : DEHN
Type: SR D30 2875 FSP10 1000 DSH GFK AL V2A
Référence: 105288
ou équivalent