Tripods for Supporting Tubes with Side Outlet

Stands for holding HVI supporting tubes for internally/externally routed HVI Conductors in/on the supporting tube, with double clamp for connection of 2x Rd 8–10 mm. Adjustable to the roof slope up to max. 10° using a variable fixing on the base holder.

The stackable concrete bases, the plastic base plates and the base holder set for holding additional concrete bases are each available separately in the accessories.

Note: Please contact us here at DEHN to find out whether the material of the roof conductor holders and plastic base plates is compatible with the roof elements.

Tripod, small

For air-termination rods D40, DEHNiso Combi supporting tubes with air-termination rod / tip or HVI Conductor installed in / on the supporting tube.

1 Product

Part No. 107390 DBS KB D50 RA680 V2A

GTIN 4013364478466, Customs tariff No. (EU): 85389099, Gross weight: 7.75 kg, PU: 1.00 Stk

Predecessor

Images

Additional information

Tripod, small, StSt (hinged design)
Tripod (hinged design) for supporting tubes
D 50 mm with side outlet or air-termination rod
D 40 mm with reduction accessories
With double clamp for the connection 2x Rd 8–10 mm
For erection with concrete bases (weight 17 kg)
Compensation for the roof slope angle up to max. 10°
Stackable concrete base (part no. 102 010)
Plastic base plate (part no. 102 050)
Base holder set (part no. 107 396)
Reduction accessories (part no. 107 399)
must be ordered separately.
Tripods are dimensioned in
line with Eurocode 1 (DIN EN 1991-1-4 + DIN
EN 1991-1-4/NA).
Stand material: StSt
Support: 40 and 50 mm
Radius: 680 mm

Brand: DEHN
Type: DBS KB D50 RA680 V2A
Part No.: 107390
or equivalent.

Certificates

 

Technical data

Stand material StSt
Support 40 and 50 mm
Radius 680 mm
Space required for stand 1175 x 1020 mm

Product 107390 was added to Notepad.

Product 107390 was added to the cart.


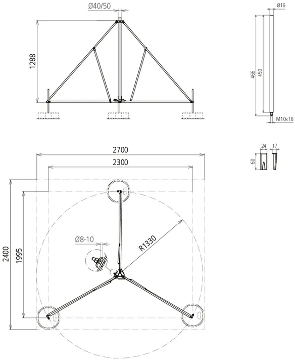
Tripod, large

For air-termination rods D40, DEHNiso Combi supporting tubes with air-termination rod / tip or HVI Conductor installed in / on the supporting tube.

1 Product

Part No. 107391 DBS KB D50 RA1330 V2A

GTIN 4013364478473, Customs tariff No. (EU): 85389099, Gross weight: 15.60 kg, PU: 1.00 Stk

Predecessor

Images

Additional information

Tripod, large, StSt (hinged design)
Tripod (hinged design) for supporting tubes
D50 mm with side outlet and double clamp for
the connection 2x Rd 8–10 mm, for erection with
concrete base (weight 17 kg) with adjustment to the roof slope to a max. of 10° using
the base holder set.
Stackable concrete base (part no. 102 010)
Plastic base plate (part no. 102 050)
Base holder set (part no. 107 396)
Reduction accessories (part no. 107 399)
must be ordered separately.
Tripods are dimensioned in
line with Eurocode 1 (DIN EN 1991-1-4 + DIN
EN 1991-1-4/NA).
Stand material: StSt
Support: 40 and 50 mm
Radius: 1330 mm

Brand: DEHN
Type: DBS KB D50 RA1330 V2A
Part No.: 107391
or equivalent.

Certificates

 

Technical data

Stand material StSt
Support 40 and 50 mm
Radius 1330 mm
Space required for stand 2300 x 1995 mm

Product 107391 was added to Notepad.

Product 107391 was added to the cart.


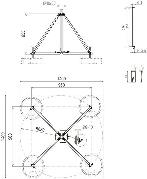
Four-legged stand, small

For air-termination rods D40, DEHNiso Combi supporting tubes with air-termination rod / tip or HVI Conductor installed in / on the supporting tube.

1 Product

Part No. 107490 VBS KB D50 RA680 V2A

GTIN 4013364478480, Customs tariff No. (EU): 85389099, Gross weight: 10.38 kg, PU: 1.00 Stk


Images

Additional information

Four-legged stand, small, StSt (hinged design)
Four-legged stand (hinged design) for supporting tubes
D 50 mm with side outlet or air-termination rod
D 40 mm with reduction accessories
With double clamp for the connection 2x Rd 8–10 mm
For erection with concrete bases (weight 17 kg)
Compensation for the roof slope angle up to max. 10°
Stackable concrete base (part no. 102 010)
Plastic base plate (part no. 102 050)
Base holder set (part no. 107 396)
Reduction accessories (part no. 107 399)
must be ordered separately.
Tripods are dimensioned in
line with Eurocode 1 (DIN EN 1991-1-4 + DIN
EN 1991-1-4/NA).
Stand material: StSt
Support: 40 and 50 mm
Radius: 680 mm

Brand: DEHN
Type: VBS KB D50 RA680 V2A
Part No.: 107490
or equivalent.

Certificates

 

Technical data

Stand material StSt
Support 40 and 50 mm
Radius 680 mm
Space required for stand 960 x 960 mm

Product 107490 was added to Notepad.

Product 107490 was added to the cart.


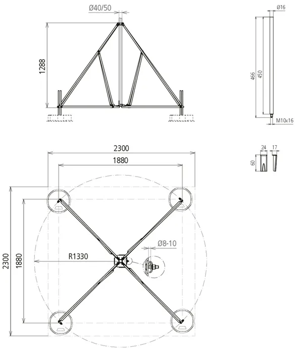
Four-legged stand, large

For air-termination rods D40, DEHNiso Combi supporting tubes with air-termination rod / tip or HVI Conductor installed in / on the supporting tube.

1 Product

Part No. 107491 VBS KB D50 RA1330 V2A

GTIN 4013364478497, Customs tariff No. (EU): 85389099, Gross weight: 17.63 kg, PU: 1.00 Stk


Images

Additional information

Four-legged stand, large, StSt, (hinged design)
Four-legged stand (hinged design) for supporting tubes
D 50 mm with side outlet or air-termination rod
D 40 mm with reduction accessories
With double clamp for the connection 2x Rd 8–10 mm
For erection with concrete bases (weight 17 kg)
Compensation for the roof slope angle up to max. 10°
Stackable concrete base (part no. 102 010)
Plastic base plate (part no. 102 050)
Base holder set (part no. 107 396)
Reduction accessories (part no. 107 399)
must be ordered separately.
Tripods are dimensioned in
line with Eurocode 1 (DIN EN 1991-1-4 + DIN
EN 1991-1-4/NA).
Stand material: StSt
Support: 40 and 50 mm
Radius: 1330 mm

Brand: DEHN
Type: VBS KB D50 RA1330 V2A
Part No.: 107491
or equivalent.

Certificates

 

Technical data

Stand material StSt
Support 40 and 50 mm
Radius 1330 mm
Space required for stand 1880 x 1880 mm

Product 107491 was added to Notepad.

Product 107491 was added to the cart.


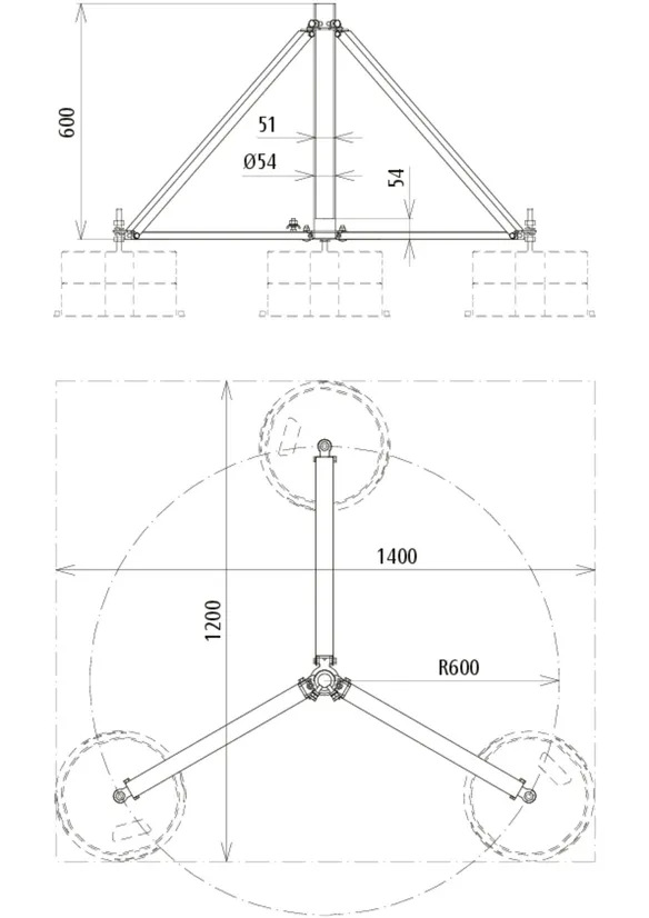
Tripod, small (discontinued)

1 Product

Part No. 105390 DBS KB D50 HS RA600 V2A

GTIN 4013364156944, Customs tariff No. (EU): 85389099, Gross weight: 7.07 kg, PU: 1.00 Stk


Images

Additional information

Small tripod, StSt (hinged)
Hinged tripod for supporting tubes D 50 mm with side outlet and double clamp for connecting 2x Rd 8-10 mm
To be installed in conjunction with concrete bases (weight: 17 kg)
Adaptation to roof inclinations up max. 5° by means of the M16 threaded rod
The stackable concrete base (Part No. 102 010), the base plate (Part No. 102 050) as well as the threaded rod sets (Part Nos. 105 396 - Part Nos. 105 398) must be ordered separately
Tripods are dimensioned according to Eurocode 1 (DIN EN 1991-1-4 + DIN EN 1991-1-4/NA)
Stand material: StSt
Support: 50 mm
Radius: 600 mm

Brand: DEHN
Type: DBS KB D50 HS RA600 V2A
Part No.: 105390
or equivalent.

 

Technical data

Stand material StSt
Support 50 mm
Radius 600 mm
Space required for stand 1400 x 1200 mm

Product 105390 was added to Notepad.

Product 105390 was added to the cart.


Tripod, large (discontinued)

1 Product

Part No. 105391 DBS KB D50 HS RA1450 V2A

GTIN 4013364156951, Customs tariff No. (EU): 85389099, Gross weight: 22.47 kg, PU: 1.00 Stk


Images

Additional information

Large tripod, StSt (hinged)
Hinged tripod for supporting tubes D 50 mm with side outlet and double clamp for connecting 2x Rd 8-10 mm
To be installed in conjunction with concrete bases (weight: 17 kg)
Adaptation to roof inclinations up max. 5° by means of the M16 threaded rod
The stackable concrete base (Part No. 102 010), the base plate (Part No. 102 050) as well as the threaded rod sets (Part Nos. 105 396 - Part No. 105 398) must be ordered separately
Tripods are dimensioned according to Eurocode 1 (DIN EN 1991-1-4 + DIN EN 1991-1-4/NA)
Stand material: StSt
Support: 50 mm
Radius: 1450 mm

Brand: DEHN
Type: DBS KB D50 HS RA1450 V2A
Part No.: 105391
or equivalent.

 

Technical data

Stand material StSt
Support 50 mm
Radius 1450 mm
Space required for stand 2900 x 2500 mm

Product 105391 was added to Notepad.

Product 105391 was added to the cart.


Four-legged stand, small (discontinued)

1 Product

Part No. 105490 VBS KB D50 HS RA600 V2A

GTIN 4013364156968, Customs tariff No. (EU): 85389099, Gross weight: 8.80 kg, PU: 1.00 Stk


Images

Additional information

Small four-legged stand, StSt (hinged)
Hinged four-legged stand for supporting tubes D 50 mm with side outlet and double clamp for connecting 2x Rd 8-10 mm
To be installed in conjunction with concrete bases (weight: 17 kg)
Adaptation to roof inclinations up max. 5° by means of the M16 threaded rod
The stackable concrete base (Part No. 102 010), the base plate (Part No. 102 050) as well as the threaded rod sets (Part Nos. 105 496 - 105 498) must be ordered separately
Four-legged stands are dimensioned according to Eurocode 1 (DIN EN 1991-1-4 + DIN EN 1991-1-4/NA)
Stand material: StSt
Support: 50 mm
Radius: 600 mm

Brand: DEHN
Type: VBS KB D50 HS RA600 V2A
Part No.: 105490
or equivalent.

 

Technical data

Stand material StSt
Support 50 mm
Radius 600 mm
Space required for stand 1200 x 1200 mm

Product 105490 was added to Notepad.

Product 105490 was added to the cart.


Four-legged stand, large (discontinued)

1 Product

Part No. 105491 VBS KB D50 HS RA1450 V2A

GTIN 4013364156975, Customs tariff No. (EU): 85389099, Gross weight: 29.35 kg, PU: 1.00 Stk


Images

Additional information

Large four-legged stand, StSt (hinged)
Hinged four-legged stand for supporting tubes D 50 mm with side outlet and double clamp for connecting 2x Rd 8-10 mm. To be installed in conjunction with concrete bases (weight: 17 kg)
Adaptation to roof inclinations up max. 5° by means of the M16 threaded rod
The stackable concrete base (Part No. 102 010), the base plate (Part No. 102 050) as well as the threaded rod sets (Part Nos. 105 496 - 105 498) must be ordered separately.
Four-legged stands are dimensioned according to Eurocode 1 (DIN EN 1991-1-4 + DIN EN 1991-1-4/NA)
Stand material: StSt
Support: 50 mm
Radius: 1450 mm

Brand: DEHN
Type: VBS KB D50 HS RA1450 V2A
Part No.: 105491
or equivalent.

 

Technical data

Stand material StSt
Support 50 mm
Radius 1450 mm
Space required for stand 2400 x 2400 mm

Product 105491 was added to Notepad.

Product 105491 was added to the cart.


back to top