Air-termination mast with HVI light plus Conductor

The complete kit of the air-termination mast for extreme heights (for biogas plants, for example).
To be fixed with three variable supports (Part No. 105 345).

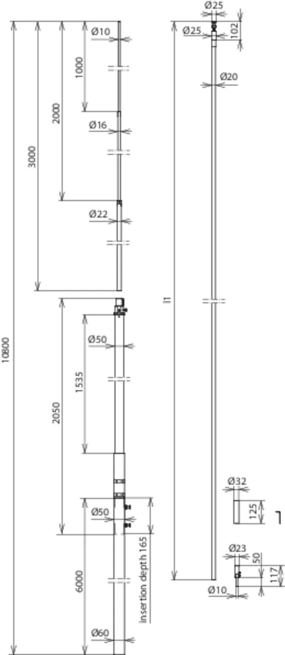
The separable air-termination mast / kit consists of:
– Al air-termination rod, Ø16/10 mm, length 1500 mm
– GRP/Al supporting tube, Ø40/50 mm, length 1600 mm
– HDG steel (St/tZn) adapter, Ø40/50 mm
– HDG steel (St/tZn) mast pipe, Ø60 mm, length 6000 mm (max. transport length)
– HVI light plus Conductor (pre-assembled, installation inside the supporting tube)

1 Product

Part No. 819735 FM 60 L9M IP HVI LI PL GFK AL STTZN

GTIN 4013364499539, Customs tariff No. (EU): 85389099, Gross weight: 52.77 kg, PU: 1.00 Stk


Images

Additional information

Air-termination masts with HVI light plus Conductor
Air-termination masts with HVI light plus Conductor
High-voltage-resistant, insulated down conductor
for maintaining the separation distance
from electrically conductive parts
as per DIN EN 62305-3 (VDE 0185-305-3)
Particularly for applications such as the fermenters or
gas tanks of biogas plants
as per protective class II of the lightning protection system.
The air-termination masts are dimensioned to
Eurocode 1 (DIN EN 1991-1-4 + DIN EN 1991-1-4/NA).
The air-termination system consists of:
– Al air-termination rod, Ø16/10 mm, length 1500 mm
– GRP/Al supporting tube, Ø40/50 mm
– HDG steel (St/tZn) adapter, Ø40/50 mm
– HDG steel (St/tZn) mast tube, Ø60 mm
Plus
3x variable supports (Part No. 105 345)
Version with 1x HVI light plus Conductor integrated,
Further lengths of the HVI light plus Conductor
have to be ordered separately.
Total length of air-termination mast: 8800 mm
Length of air-termination rod: 1500 mm
Length of supporting tube: 1600 mm
Length of mast pipe: 6000 mm
Colour of conductor: Grey ●
Minimum order length: 10.0 m
Standard: DIN IEC/TS 62561-8 (VDE V 0185-561-8)

Brand: DEHN
Type: FM 60 L9M IP HVI LI PL GFK AL STTZN
Part No.: 819735
or equivalent.

Certificates

 

Technical data

Total length of air-termination mast 8800 mm
Length of air-termination rod 1500 mm
Length of supporting tube 1600 mm
Length of mast pipe 6000 mm
Diameter Ø conductor 21 mm
Colour of conductor Grey
Material of conductor Cu
Minimum order length 10.0 m
Standard DIN IEC/TS 62561-8 (VDE V 0185-561-8)

Product 819735 was added to Notepad.

Product 819735 was added to the cart.


back to top