Air-termination Mast for Sub-roof Installation of the HVI Conductor

For installation on the mounting bracket for installation on rafters.Optically optimised design because the HVI Conductor is installed inside the supporting tube. The HVI Conductor is led through the supporting tube of the mounting bracket for use on rafters and installed in the area of the counter-battens / roof battens.Benefits:
  • Sub-roof installation – invisible
  • Only the supporting tube is visible
  • No mechanical load, e.g. snow
Minimum order length 6 m. Conductor length to be indicated when ordering (in steps of 0.5 m).The conductor cannot be returned as it is made to order.

DEHNcon-H / HVI Conductor inside the supporting tube with air-termination rod

1 Product

Part No. 819247 HVI 20 M L6M SR1955 FS2500 DSH GFK AL

GTIN 4013364260900, Customs tariff No. (EU): 85389099, Gross weight: 7.10 kg, PU: 1.00 Stk


Images

Additional information

Air-termination mast for installing HVI Conductors underneath the roof
Air-termination mast with HVI Conductor and air-termination rod installed underneath the roof on the mounting bracket for rafters
The HVI Conductor is led through the tube of the mounting bracket for rafters and installed in the area the counter/roof battens.
The supporting tubes are dimensioned according to Eurocode 1 (DIN EN 1991-1-4 + DIN EN 1991-1-4/NA).
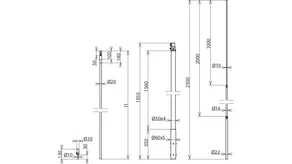
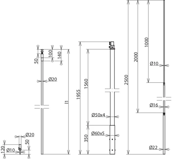
DEHNcon-H HVI Conductor in the supporting tube with special internal sealing end and air-termination rod Ø22/1610 mm, 2500 mm long
Material of supporting tube: GRP / Al
Length of supporting tube: 1955 mm
Colour of conductor: black ●
Material of conductor: Cu
Equivalent separation distance s (in air): ≤ 75 cm
Minimum order length: 6 m
Max. gust wind speed: 140 km/h
Standard: DIN IEC/TS 62561-8 (VDE V 0185-561-8)

Brand: DEHN
Type: HVI 20 M L6M SR1955 FS2500 DSH GFK AL
Part No.: 819247
or equivalent.

Certificates

 

Technical data

Material of supporting tube GRP / Al
Length of supporting tube 1955 mm
Length of air-termination rod 2500 mm
Outside diameter Ø GRP 50 mm
Diameter Ø conductor 20 mm
Colour of conductor black ●
Material of conductor Cu
Equivalent separation distance s (in air) ≤ 75 cm
Minimum order length 6 m
Max. gust wind speed 140 km/h
Standard DIN IEC/TS 62561-8 (VDE V 0185-561-8)

Product 819247 was added to Notepad.

Product 819247 was added to the cart.


back to top